Thiết kế homestay nhà ống không đơn thuần là chia phòng và trang trí nội thất, mà là bài toán tổng hợp giữa công năng, trải nghiệm và khả năng vận hành lâu dài. Rất nhiều homestay sau khi đưa vào hoạt động mới phát sinh bất cập do mắc lỗi ngay từ khâu thiết kế ban đầu. Những sai lầm này thường xuất phát từ việc chưa hiểu rõ đặc thù nhà ống và hành vi lưu trú của khách. Dưới đây là 7 sai lầm phổ biến khi thiết kế homestay nhà ống kèm cách khắc phục thực tế, dễ áp dụng.
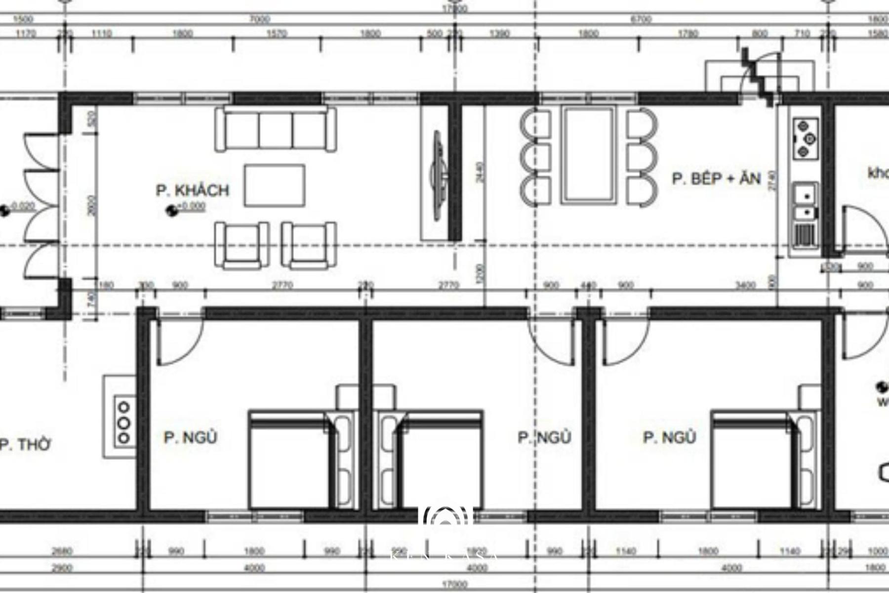
Chia phòng theo cảm tính, không dựa trên đặc điểm mặt bằng nhà ống
Nhiều chủ đầu tư chia phòng dựa trên suy nghĩ đơn giản là “mỗi tầng bao nhiêu phòng” mà không phân tích chiều sâu, chiều ngang và luồng giao thông trong nhà ống. Cách chia này thường tạo ra hành lang dài, hẹp, chiếm nhiều diện tích nhưng không mang lại giá trị sử dụng. Phòng ngủ nằm sâu bên trong dễ bị tối, thiếu thông gió, khiến khách cảm thấy bí bách dù diện tích không quá nhỏ.
Cách khắc phục: Khi thiết kế cần phân tích kỹ mặt bằng hiện trạng, xác định trục giao thông chính và phụ. Phòng ngủ nên được bố trí gần khu vực có khả năng lấy sáng, còn khu phụ trợ như kho, vệ sinh, cầu thang cần được gom gọn để tối ưu diện tích sử dụng.

Giữ nguyên kết cấu kín của nhà ống cũ, không bổ sung giếng trời
Rất nhiều homestay cải tạo từ nhà ống cũ vẫn giữ nguyên cấu trúc kín bưng, chỉ thay đổi nội thất bên trong. Điều này khiến ánh sáng tự nhiên chỉ tập trung ở mặt tiền, trong khi khu vực giữa và cuối nhà luôn tối. Không gian thiếu ánh sáng tự nhiên làm trải nghiệm lưu trú kém và tăng chi phí chiếu sáng ban ngày.
Cách khắc phục: Nên mạnh dạn can thiệp kiến trúc bằng cách bổ sung giếng trời hoặc thông tầng ở vị trí phù hợp. Giải pháp này giúp ánh sáng và không khí lưu thông tốt hơn, đồng thời nâng cao giá trị không gian mà không cần tăng diện tích xây dựng.

Cố gắng tối đa số phòng dẫn đến phòng ngủ chật và bất tiện
Một sai lầm phổ biến là ưu tiên số lượng phòng thay vì chất lượng trải nghiệm. Khi diện tích phòng quá nhỏ, việc bố trí giường, tủ, bàn làm việc và khu vệ sinh trở nên khó khăn, không đảm bảo sự thoải mái cho khách. Điều này dễ dẫn đến đánh giá thấp trên các nền tảng đặt phòng dù giá thuê không hề rẻ.
Cách khắc phục: Cần xác định rõ phân khúc khách hàng mục tiêu và mức giá phòng phù hợp. Giảm số lượng phòng để tăng diện tích sử dụng sẽ giúp nâng cao trải nghiệm, kéo dài thời gian lưu trú và tăng khả năng khách quay lại.

Không xử lý cách âm ngay từ giai đoạn thiết kế
Nhà ống có đặc trưng xây dựng nhiều tầng và sát công trình bên cạnh, rất dễ truyền âm thanh. Nếu không xử lý cách âm, tiếng bước chân, tiếng nói chuyện hay sinh hoạt ở tầng trên sẽ ảnh hưởng trực tiếp đến phòng bên dưới. Đây là nguyên nhân khiến nhiều homestay bị phàn nàn dù thiết kế đẹp.
>>>> Có thể bạn quan tâm: Top 7 giải pháp chống ồn trong thiết kế homestay nhà ống
Cách khắc phục: Cần tính toán giải pháp cách âm ngay từ đầu bằng việc sử dụng vật liệu phù hợp cho sàn, tường và trần. Ngoài ra, việc bố trí công năng theo chiều đứng hợp lý cũng giúp hạn chế xung đột tiếng ồn.

Thiết kế mỗi phòng một kiểu, thiếu phong cách chủ đạo
Không ít homestay nhà ống được thiết kế theo sở thích cá nhân, mỗi phòng mang một phong cách khác nhau. Điều này khiến tổng thể công trình thiếu sự liên kết, không tạo được dấu ấn thương hiệu rõ ràng. Về lâu dài, homestay khó ghi nhớ trong tâm trí khách hàng và kém nổi bật trên các nền tảng trực tuyến.
Cách khắc phục: Nên lựa chọn một phong cách thiết kế xuyên suốt cho toàn bộ homestay. Sự đồng bộ về màu sắc, vật liệu và chi tiết nội thất sẽ giúp không gian hài hòa và dễ xây dựng hình ảnh thương hiệu.
Bố trí không gian sinh hoạt chung không phù hợp với mô hình nhà ống
Một số homestay dành quá nhiều diện tích cho không gian chung ở tầng trệt, khiến số lượng phòng bị giảm đáng kể. Ngược lại, có nơi lại gần như bỏ qua khu sinh hoạt chung, làm trải nghiệm lưu trú trở nên đơn điệu. Cả hai cách đều ảnh hưởng đến hiệu quả khai thác.
Cách khắc phục: Cần xác định rõ vai trò của không gian chung trong mô hình kinh doanh. Với nhà ống, không gian chung nên được thiết kế gọn gàng, đa năng, vừa đủ để kết nối mà không chiếm quá nhiều diện tích.

Thiết kế cố định, khó thay đổi công năng khi cần cải tạo
Nhiều homestay nhà ống được thiết kế theo kiểu “đóng khung” công năng, khó điều chỉnh khi thị trường thay đổi. Khi cần nâng cấp hoặc cải tạo, chủ đầu tư phải tháo dỡ nhiều hạng mục, gây tốn kém chi phí và thời gian.
Cách khắc phục: Ngay từ đầu, thiết kế nên hướng đến sự linh hoạt và khả năng thay đổi. Việc sử dụng nội thất module, vách ngăn nhẹ và hệ thống kỹ thuật linh hoạt giúp homestay dễ dàng nâng cấp trong tương lai.

Những sai lầm trong thiết kế homestay nhà ống thường không nằm ở chi tiết nhỏ mà bắt nguồn từ cách tiếp cận tổng thể ngay từ đầu. Khi hiểu đúng đặc thù nhà ống và nhu cầu lưu trú thực tế, chủ đầu tư hoàn toàn có thể tránh được các lỗi phổ biến này. Với kinh nghiệm thiết kế và cải tạo homestay thực tế, KenKasa luôn đưa ra giải pháp phù hợp từng mặt bằng, tối ưu chi phí và hiệu quả vận hành. Đây là yếu tố quan trọng giúp homestay nhà ống phát triển bền vững trong dài hạn.
Đọc thêm: 5 mô hình homestay phù hợp nhất với nhà ống 2026 dễ triển khai mang lại lợi nhuận cao